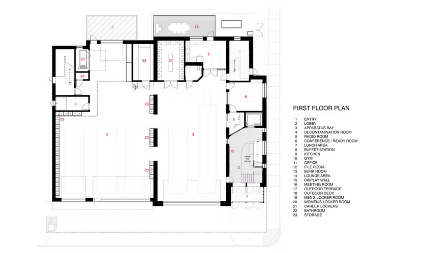
HARRISON FIRE DEPARTMENT
WESTCHESTER COUNTY, NEW YORK
Project Type:
Public Service Facilities
Size: 21,000 sq.ft.,
Cost: $10 million
Provide new third floor to existing building to alleviate overcrowding, handicapped accessibility & code compliant, new public friendly entrance, energy efficient roof & windows.
Increased natural daylighting from high performance double insulated low-e windows
Provide direct access to apparatus bay from rear parking lot
Enlarge apparatus bay to accommodate current equipment and future vehicles & equipment.
Install new insulation systems, water conserving plumbing fixtures, high efficiency hvac systems, energy efficient lighting using LED lighting.
Ability to accommodate training & drills for career volunteers & firefighters.
Provide new career firefighter semi-private sleeping quarters with locker rooms & bathrooms, new multi-functional meeting rooms, adequate interior storage at each floor.





